Detalle - Mayer & Dau
Skip to content

Colonia De Sant Jordi: Piso de nueva construcción con piscina comunitaria. Obj. 7801

ESP, Mallorca, Colonia De Sant Jordi
560 000 €

Ihr Ansprechpartner

Alvaro Sanchez Boyero

+34 651 445 255 a.sanchez-boyero@mayer-dau.de

Parámetros

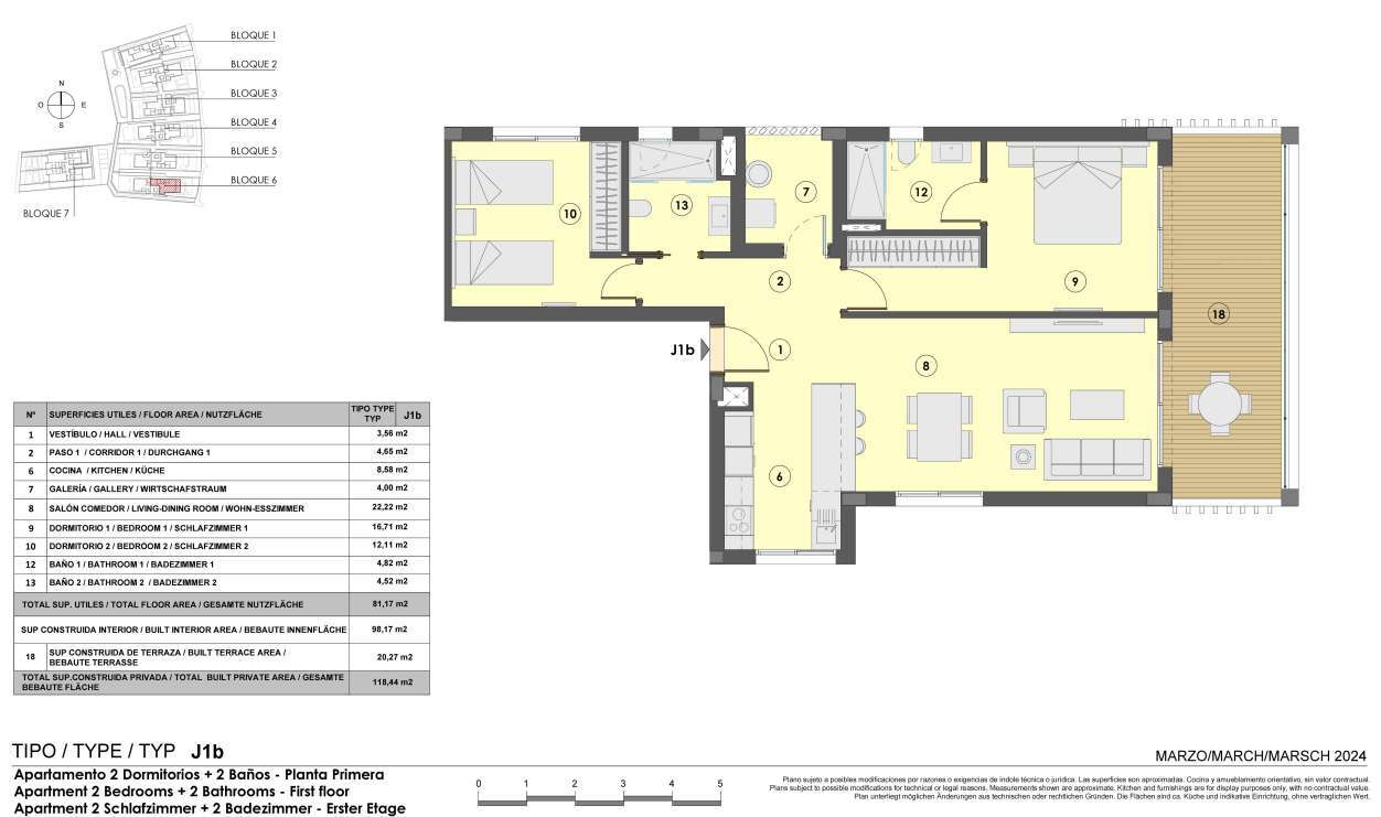
118.00 m2
2
2

Descriptión

Nos complace presentar este exclusivo complejo de nueva construcción con un total de 24 unidades residenciales. Las viviendas se distribuyen en siete edificios independientes y ofrecen un ambiente moderno y confortable.
El piso de la última planta que aquí se ofrece impresiona por su estudiada distribución de las estancias y su equipamiento de alta calidad, que atraerá tanto a inversores como a propietarios.

El piso, al que se puede acceder fácilmente en ascensor o por la escalera, tiene una generosa superficie habitable de unos 118 m². La distribución de las habitaciones es la siguiente: Un amplio dormitorio con baño en suite y acceso directo a la logia le ofrece un refugio privado. Otro dormitorio bien proporcionado y un cuarto de baño contiguo garantizan suficiente espacio y comodidad para su familia o invitados. Los cuartos de baño están equipados con calefacción eléctrica por suelo radiante. Un lavadero ofrece espacio de almacenamiento adicional y funcionalidad. El amplio y diáfano salón-comedor es la pieza central del piso. La cocina está incluida en el precio de compra. Los ventanales de suelo a techo inundan la estancia de luz natural y crean un ambiente luminoso y acogedor. Desde aquí se accede a la logia, que invita a relajarse y disfrutar.
Un sistema de ventilación por conductos frío/calor con aire acondicionado de evaporación directa garantiza un clima agradable en todo momento.

El piso también dispone de un aparcamiento subterráneo, que le ofrece una plaza de aparcamiento segura y cómoda. Justo al lado hay un sótano, que proporciona espacio de almacenamiento adicional para sus pertenencias personales. En el exterior, hay una zona comunitaria con piscina, bañera de hidromasaje y tumbonas.

Póngase en contacto con nosotros hoy para obtener más información o para concertar una visita. Póngase en contacto con Álvaro Sánchez en nuestra oficina de Cala Ratjada.

Número de objeto 7801
Año de construcción 2025
Número de habitaciones 3
Número de baños 2
Estado Activo
Precio de compra 560 000 €
Tipo de certificado energético energieausweisVorhanden
Válido hasta el 0000-00-00
Año de construcción 0
Etiqueta energética B
Parámetro energético kWh/(m2a)
Fuente de energía clave

- 2 habitaciones
- 2 cuartos de baño
- Amplio salón y comedor
- Cocina de alta calidad con electrodomésticos de marca incluidos
- Armarios empotrados
- Ventanas de doble acristalamiento / marcos de PVC
- Loggia con orientación oeste
- Aire acondicionado
- Opciones de personalización en los pisos
- Aparcamiento subterráneo
- Trastero asignado
- Zona comunitaria con piscina, jacuzzi, tumbonas
- Bomba de calor de aire para agua caliente
- Depósito de agua caliente de 190 litros
- TELEVISIÓN POR SATÉLITE
- Fibra óptica
- Suelo radiante eléctrico en los baños
- Cerca de la playa

Escribanos
Ich habe die Datenschutzhinweise zur Kenntnis genommen.
Ich bin mit den AGB einverstanden.